This property has been rented.
4,684 views, 24 enquiries, and rented in 34 days.
Have a similar property? myRent is best way to find tenants.

10 bedroom flat close to University/city

41 Royal Terrace, Dunedin Central, Dunedin

$2,000

per week

8+ beds
2 baths
Pets allowed with consent
Available now
Bond $6,000
Partially furnished
Gas cooking/hot water
Heatpump
Dryer
Washing machine
Heating
Fully-fenced
Deck
Built-in wardrobe
Air conditioning

Property is located in a quiet, elevated area close to the university and city.

Viewings likely to be organised after exams or early semester 1.

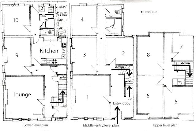
- 10 good sized bedrooms across 3 floors. A few extra large. Each has built in wardrobe.
- There are 2 separate shower/bathrooms - one of which is new/freshly renovated at start of 2023 (shower, vanity, flooring, paint, extraction fan).
- 2 separate toilets.
- Large lounge with large heatpump and couches provided.
- All bedrooms, bathrooms and lounge, freshly painted recently.
- Brand-new kitchen installed and renovated in Jan 2023. Stainless steel bench top. New lighting. New flooring and paint. New ceramic cooktop. Double oven, fridge and dishwasher. Good sized pantry and cupboards for extra storage.
- Kitchenette on upper floor with sink, benchtop, sink and space for underbench fridge.
- Outside deck area with backdoor entrance - enjoy your breakfast or coffee in the morning sun.
- Laundry area with washing machine, dryer and hand basin. 2x clothes lines on back deck.
- Constant supply of gas heated water - tenants responsibility to pay for gas.

Ideally suited to a group of quieter students/tenants who will respect the surrounding neighbours/families.

52 week fixed-term lease for 2026. Tenancy starting 01/01/26.
Rent is $2000/week ($200 per room or however you would like sort it between the group). Bond is 3 weeks rent.

Suitable for up to 10 tenants who are clean/tidy and will respect the property they live as well as their surrounding neighbours.
No pets or smokers.

Open homes
Contact the landlord to arrange a private viewing.
First listed 18 May, 2025
Views 4,684
Nearby University of Otago (0.9km away)

Enquire

myRent connects tenants directly with landlords so you get direct answers.

Apply

Ready to rent this property? It's easy to make your application online.

Apply
Report this listing

If you believe that this listing is fraudulent or violates our Terms of Use, please let us know why below. We will investigate the listing and take appropriate action.

We'll keep you updated with our findings. We will only contact you to discuss this report.

Don't miss out on new Dunedin rentals

myRent can email you listings as soon as they come up so you can be first in, best dressed.

$