This property has been rented.
1,487 views, 10 enquiries, and rented in 10 days.
Have a similar property? myRent is best way to find tenants.

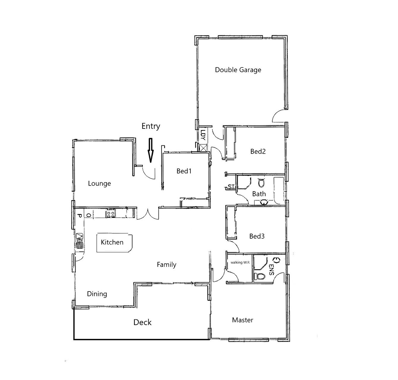
Spacious 4BR Home with ducted aircon/central vac

5 Catlins Place, Fairview Heights, Auckland

$1,100

per week

4 beds
2 baths
2 covered
5+ uncovered
Pets allowed with consent
Available now
Bond $4,400
Ventilation - dvs
Heating
Garden
Ducted air conditioning
Deck
Central vacuum
Built-in wardrobe
Alarm
Air conditioning

Nestled in the tranquil neighbourhood of Fairview Heights, this stunning 4-bedroom, 2-bathroom home presents a perfect blend of comfort and convenience. Boasting a generous layout, the property features modern amenities such as ducted air conditioning for year-round comfort, a central vacuum system for ease of cleaning, and an alarm for added security. The built-in wardrobes provide ample storage, while the deck and beautifully manicured garden offer a serene outdoor retreat.
The convenience of 7 dedicated parking spots eliminates any parking hassles, ensuring a smooth start and end to your day.
Albany Public Transport Hub, Westfield Albany, Long Bay Regional Park, and Browns Bay Beach - all easily accessible!
School zones: Oteha Valley School, Northcross intermediate and Long bay college

The Fairview Heights community is known for its friendly atmosphere and community spirit, making it an ideal place for families, professionals, and anyone looking to settle in a vibrant neighbourhood. With this property, you'll find a warm and welcoming environment to call home. The weekly rent is set at $1,100 with a bond of $4,400. This residence, complete with air conditioning, heating, and ventilation systems, promises a comfortable and stylish living experience.

Open homes
Contact the landlord to arrange a private viewing.
First listed 17 January, 2025
Views 1,487

Enquire

myRent connects tenants directly with landlords so you get direct answers.

Apply

Ready to rent this property? It's easy to make your application online.

Apply
Report this listing

If you believe that this listing is fraudulent or violates our Terms of Use, please let us know why below. We will investigate the listing and take appropriate action.

We'll keep you updated with our findings. We will only contact you to discuss this report.

Don't miss out on new Auckland rentals

myRent can email you listings as soon as they come up so you can be first in, best dressed.

$