This property has been rented.
3,510 views, 0 enquiries, and rented in 12 days.
Have a similar property? myRent is best way to find tenants.

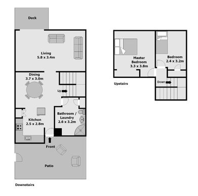
Peaceful 2-bedroom townhouse

4/33 Eskdale Road, Birkdale, Auckland

$550

per week

2 beds
1 bath
1 covered
Pets allowed with consent
Available now
Bond $2,200
Covered carport
Heat pump
Double glazing
Heating
Deck
Courtyard
Built-in wardrobe
Balcony

Private, spacious townhouse set well back from the road with a beautiful native bush outlook.
-Two bedrooms both with built-in wardrobes and views into the treetops.
-Large bathroom
-Well-equipped kitchen
-Extra large split-level living area perfect for the work from home lifestyle.
-Two heat pumps - in living and main bedroom.
-Double glazing.
-Single covered carport.
-Fully fenced sunny courtyard plus deck overlooking native bush.
-Light, bright, dry and warm home.

A few mins walk to two different bus routes (97 to City and 933 to University). Short walk to dairy.

Move in costs:
Bond = 4 weeks rent ($2,200)
1 week rent in advance ($550)

Open homes
Contact the landlord to arrange a private viewing.
First listed 11 April, 2021
Views 3,510

Enquire

myRent connects tenants directly with landlords so you get direct answers.

Apply

Ready to rent this property? It's easy to make your application online.

Apply
Report this listing

If you believe that this listing is fraudulent or violates our Terms of Use, please let us know why below. We will investigate the listing and take appropriate action.

We'll keep you updated with our findings. We will only contact you to discuss this report.

Don't miss out on new Auckland rentals

myRent can email you listings as soon as they come up so you can be first in, best dressed.

$