This property has been rented.
3,005 views, 0 enquiries, and rented in 16 days.
Have a similar property? myRent is best way to find tenants.

Sunny 1 bedroom unit (All bills included in rent)

Mangere Bridge, Auckland

$525

per week

1 bed
1 bath
1 covered
Pets allowed with consent
Available now
Bond $1,050
Healthy Homes compliant
Heating
Garden
Fully-fenced
Deck
Courtyard
Built-in wardrobe
Air conditioning

Bills included in rent - WIFI, power & water.

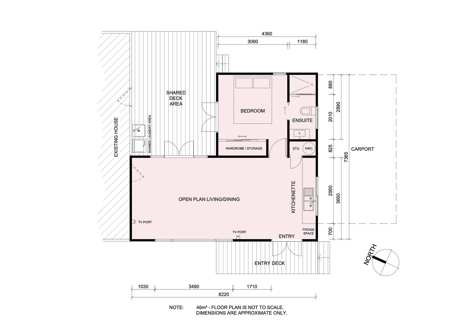
Tidy one bedroom unit in the best area of Mangere Bridge! The unit is at the back of our house, with your own private access. Suitable for an individual or couple.

The unit has a large living area that gets plenty of sun and opens out onto your own courtyard. There is a double bedroom with walk-in wardrobe and ensuite, and a heatpump/AC in main living area. The house is fully fenced. There is a little kitchenette, with basic cooking equipment provided (a hot plate, benchtop oven, toaster & kettle). The unit also comes with a washing machine. There is temporary secure off street parking available. Current occupants bed and couch are available to remain as well.

Use of WIFI, power & water included in rent - more details provided on application.

The house is right at the base of the domain on a very quiet street. Minutes away from tracks up the mountain, and heaps of afternoon sun.

We live in the main house so you'll have the added security of people nearby.

Cats allowed, no dogs sorry.

Open homes
Contact the landlord to arrange a private viewing.
First listed 16 September, 2022
Views 3,005

Enquire

myRent connects tenants directly with landlords so you get direct answers.

Apply

Ready to rent this property? It's easy to make your application online.

Apply
Report this listing

If you believe that this listing is fraudulent or violates our Terms of Use, please let us know why below. We will investigate the listing and take appropriate action.

We'll keep you updated with our findings. We will only contact you to discuss this report.

Don't miss out on new Auckland rentals

myRent can email you listings as soon as they come up so you can be first in, best dressed.

$