This property has been rented.
5,486 views, 106 enquiries, and rented in 26 days.
Have a similar property? myRent is best way to find tenants.

Compact, Sunny and Private 3 bedroom house

105 Severn Street, Island Bay, Wellington

$775

per week

3 beds
2 baths
1 covered
1 uncovered
Pets allowed with consent
Available now
Bond $3,000
Air conditioning
Healthy Homes compliant
Garden
Heating
Fully-fenced
Courtyard
Built-in wardrobe

Overlooking popular Island Bay is this stand alone house with sun and privacy in abundance.

Fully fenced and sunny courtyard off French doors for easy indoor/outdoor flow from the kitchen and dining area.

The lounge, kitchen and dining areas get all day sun with a pleasant view looking north over Island Bay.

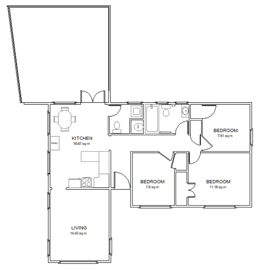
3 bedrooms, 1 double and 2 smaller twin sized, with built-in wardrobes, as shown on the plan view.

One bathroom with shower over bath.

Separate laundry with spare toilet.

One car garage with a small storage room and one, possibly two, off street parking.

Dishwasher, fridge, washing machine, clothes dryer and heat pump included.

A short walk down the hill to Owhiro Bay and a quick drive to Island Bay beach and Princess Beach.

Short trip to the supermarket and shops, bus stop nearby.

Open homes
Contact the landlord to arrange a private viewing.
First listed 18 December, 2023
Views 5,486

Enquire

myRent connects tenants directly with landlords so you get direct answers.

Apply

Ready to rent this property? It's easy to make your application online.

Apply
Report this listing

If you believe that this listing is fraudulent or violates our Terms of Use, please let us know why below. We will investigate the listing and take appropriate action.

We'll keep you updated with our findings. We will only contact you to discuss this report.

Don't miss out on new Wellington rentals

myRent can email you listings as soon as they come up so you can be first in, best dressed.

$