This property has been rented.
7,823 views, 43 enquiries, and rented in 168 days.
Have a similar property? myRent is best way to find tenants.

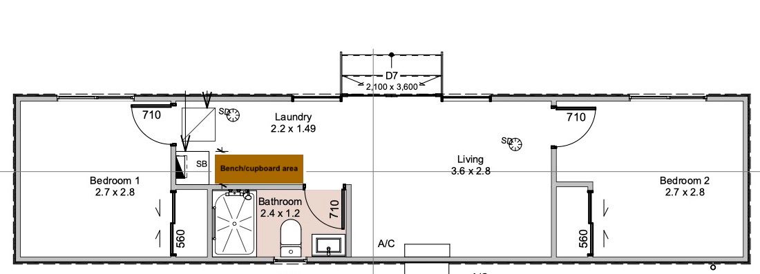
Near New Studio: 2-BR, Living + Bathroom in Stoke

Stoke, Nelson

$495

per week

2 beds
1 bath
2 uncovered
Pets allowed with consent
Available now
Bond $1,980
Heating
Garden
Courtyard
Built-in wardrobe
Air conditioning
Healthy Homes compliant

PLEASE READ BELOW CAREFULLY

We’ve set these up because we’re passionate about helping people achieve their goals.

It might be:
• Studying to up-skill yourself
Saving for a home of your own
An overseas trip

To help people achieve this, we providing healthy (near new) rentals at a lower price that it costs to rent and set up a whole house on your own.
Because you’ve got to be healthy to study/work and, it goes without saying, lower cost of living is needed to save.

What’s the catch?
Yes, something’s always “got to give”.
In this case it’s shared living… a little bit of socialising is good for you right?

Here, while you will have you own bathroom, washer-dryer and lockable room…
You share the main kitchen, dining, living and outdoor areas.
Everything is furnished and provided (bring your own bed if you like).

So you know your costs (and therefore, your how much you can save each week)…
We charge a set amount for power, water, internet and rubbish collection.
Easy as!

Other things of note:
The rentals are in a central location in Stoke (and Tahunanui) so you don’t need to spend much petrol getting to the supermarket and other places - like the beach!

Currently, we don’t have any available but spaces do come up regularly.
We recommend registering interest as those registered will get first option when something comes up.

You can get more info &/or go on the waiting list here:
www.barhamritz.nz

NOTE: If you enquire through here (not at the website above), it will be ignored.

Open homes
Contact the landlord to arrange a private viewing.
First listed 26 March, 2025
Views 7,823

Enquire

myRent connects tenants directly with landlords so you get direct answers.

Apply

Ready to rent this property? It's easy to make your application online.

Apply
Report this listing

If you believe that this listing is fraudulent or violates our Terms of Use, please let us know why below. We will investigate the listing and take appropriate action.

We'll keep you updated with our findings. We will only contact you to discuss this report.

Don't miss out on new Nelson rentals

myRent can email you listings as soon as they come up so you can be first in, best dressed.

$