This property has been rented.
4,906 views, 88 enquiries, and rented in 27 days.
Have a similar property? myRent is best way to find tenants.

Brand New Home in Desired Location

30 Sands Road, Glenbervie, Whangarei

$690

per week

3 beds
2 baths
2 covered
2 uncovered
Pets allowed with consent
Available now
Bond $2,760
Pets allowed
Heating
Garden
Fully-fenced
Deck
Courtyard
Built-in wardrobe
Air conditioning
New build
Wheelchair accessible
Healthy Homes compliant

You will be the very first people to live in this newly built stylish home. Designed, built and decorated by Barret Homes in an established part of the Sands Road development. Located in the desirable school zone of Glenbervie Primary School, in a great community along the access way to the Tutukaka coast.

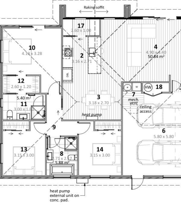
Settle in to this high speced warm and sunny home, indoor/ outdoor flow for entertaining, fully fenced flat section, all the mod cons, butlers pantry, private master bedroom with ensuite etc. The list goes on. The house floor plan is a spacious open plan design of 160m2 with a double garage on a 500m2 easy care section.

Pets are negotiable on discretionary terms.

You are welcome to view the house from the road side, but please do not enter the section. Please note, the house will have high end landscaping completed prior to move in date. Also, photos are indicative only and will be updated when complete. Design will differ slightly.

There will be a viewing held on Saturday 8th of November from 12:00-2:00. Tenancy can take place the week after. If you wish to register an application complete with references prior to the open day, please enquire.

Open homes
Contact the landlord to arrange a private viewing.
First listed 11 September, 2025
Views 4,906

Enquire

myRent connects tenants directly with landlords so you get direct answers.

Apply

Ready to rent this property? It's easy to make your application online.

Apply
Report this listing

If you believe that this listing is fraudulent or violates our Terms of Use, please let us know why below. We will investigate the listing and take appropriate action.

We'll keep you updated with our findings. We will only contact you to discuss this report.

Don't miss out on new Whangarei rentals

myRent can email you listings as soon as they come up so you can be first in, best dressed.

$