This property has been rented.
2,973 views, 45 enquiries, and rented in 15 days.
Have a similar property? myRent is best way to find tenants.

Cozy Family Home

101 Flanshaw Road, Te Atatu South, Auckland

$600

per week

3 beds
1 bath
2 uncovered
Pets allowed with consent
Available now
Bond $2,400
Built-in wardrobe
Newly renovated bathroom
Newly renovated kitchen
Healthy Homes compliant
Built in wardrobes
Conservatory
Heating
Garden
Courtyard
Air conditioning

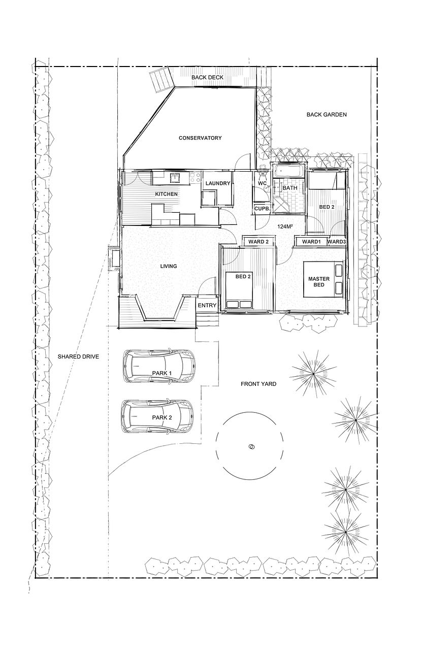
Freestanding, single level, 3 bedroom house, perfect for your family.

Recently re-carpeted and recently painted inside and outside.

Brand new dishwasher and oven.

New roof.

Large living room with fireplace and heat pump.

Two double bedrooms and a smaller bedroom for an office or child. All rooms include built-in wardrobes.

Large conservatory that could be used as an extra living area, rumpus room, studio or office.

Separate laundry area.

Front garden with fruit trees and a back courtyard.

Two off street car parks.

----Location is the best part

The address is in zone for Freyberg Community School, Rangeview Intermediate, Edmonton School, Rutherford School, Flanshaw Road School, Te Atatu Intermediate, Henderson Intermediate, Rutherford College and Waitekere College.

Easy motorway access - a short drive to the western motorway. Short drive to Countdown, various parks, West Wave and Kmart.

Bus stop directly across the road.

Best suited to 4 occupants.

Pets are negotiable, gardens maintained by landlord.

Rent - $600 a week (All utilities extra)

Move-in cost - One week advance rent + 4 weeks bond.

Open homes
Contact the landlord to arrange a private viewing.
First listed 22 October, 2024
Views 2,973

Enquire

myRent connects tenants directly with landlords so you get direct answers.

Apply

Ready to rent this property? It's easy to make your application online.

Apply
Report this listing

If you believe that this listing is fraudulent or violates our Terms of Use, please let us know why below. We will investigate the listing and take appropriate action.

We'll keep you updated with our findings. We will only contact you to discuss this report.

Don't miss out on new Auckland rentals

myRent can email you listings as soon as they come up so you can be first in, best dressed.

$