This property has been rented.
2,789 views, 15 enquiries, and rented in 49 days.
Have a similar property? myRent is best way to find tenants.

Waterfront Luxury Apartment in Gulf Harbour

43 Waterside Crescent, Gulf Harbour, Whangaparaoa

$790

per week

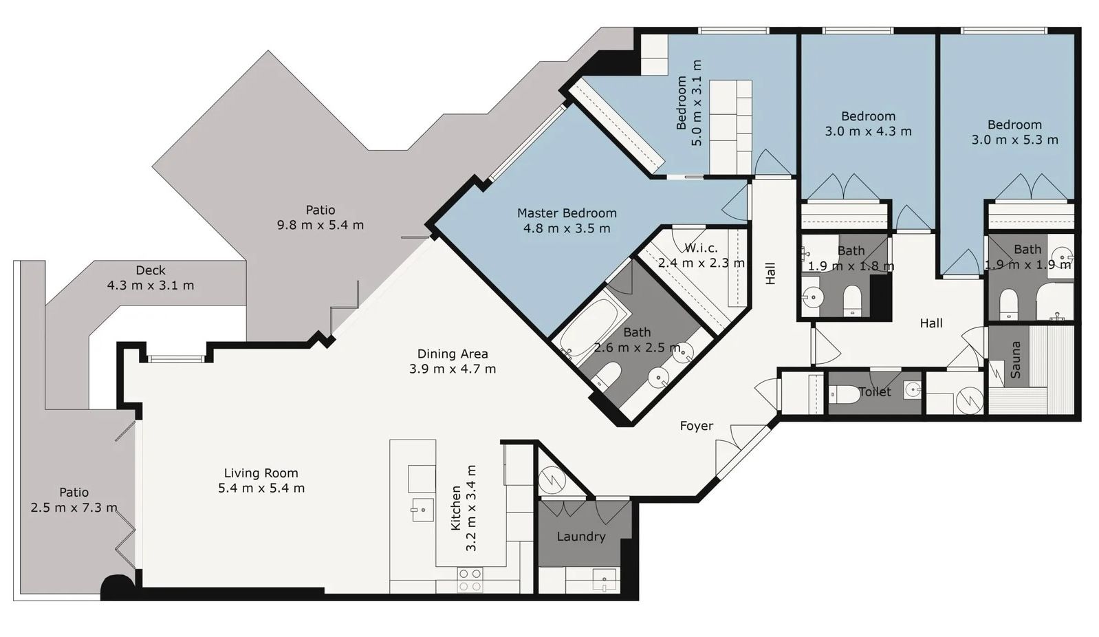
3 beds
4 baths
2 covered
5+ uncovered
Pets allowed with consent
Available now
Bond $3,160
Drier
Washer
Microwave
Inductive cooktop
Fridges
Heating
Garden
Fully-fenced
Deck
Courtyard
Built-in wardrobe
Alarm
Air conditioning
Healthy Homes compliant

Discover the ultimate waterfront lifestyle in this stunning, single-level ground-floor apartment in the heart of Gulf Harbour. Perfectly positioned with breathtaking marina views, this beautifully presented home blends comfort, convenience, and sophistication.

Key Features:

Spacious Open-Plan Living: Enjoy a seamless flow between the modern chef’s kitchen with Caesarstone benchtops and top-quality appliances, dining, and living areas, ideal for entertaining.

Marina Views & Outdoor Space: Relax on the patios surrounded by a low-maintenance, landscaped garden—perfect for kids or quiet evenings. Feed the friendly resident fish and soak in the vibrant marina atmosphere.

Three Generous Bedrooms: Light-filled double bedrooms with garden views. The master suite, overlooking the marina, includes a huge walk-in wardrobe (converted from the 4th bedroom) and ensuite for a private retreat.

Modern Comforts: LED lighting, heat pump in the lounge.

Sauna: Private sauna within the apartment for ultimate relaxation.

Prime Location: Just steps from cafes, restaurants, 4 Square, and the Gulf Harbour ferry terminal (5-minute walk) for an easy city commute. Wentworth School is 500m away, and a nearby reserve offers extra outdoor space. Easy access to the Gulf Harbour boat ramp, dry stack and nearby marina.

Parking & Storage: Double garage for use of the tenants plus off-street parking for guests.

This rare rental opportunity offers luxury, convenience, and waterfront charm in one of Gulf Harbour’s most desirable spots. Contact us today to arrange a viewing!

Apartment is unfurnished.

Open homes
Contact the landlord to arrange a private viewing.
First listed 27 April, 2025
Views 2,789

Enquire

myRent connects tenants directly with landlords so you get direct answers.

Apply

Ready to rent this property? It's easy to make your application online.

Apply
Report this listing

If you believe that this listing is fraudulent or violates our Terms of Use, please let us know why below. We will investigate the listing and take appropriate action.

We'll keep you updated with our findings. We will only contact you to discuss this report.

Don't miss out on new Whangaparaoa rentals

myRent can email you listings as soon as they come up so you can be first in, best dressed.

$