This property has been rented.
4,045 views, 102 enquiries, and rented in 27 days.
Have a similar property? myRent is best way to find tenants.

Three Bedroom House in Takanini

11 Mokopapa Street, Takanini, Takanini

$720

per week

3 beds
1 bath
1 covered
1 uncovered
Pets allowed with consent
Available now
Bond $2,160
Heating
Garden
Fully-fenced
Courtyard
Built-in wardrobe
Air conditioning
New build
Healthy Homes compliant

📍 11 Mokopapa Street, Takanini
Rent - $720
Bond - $2160
Available - 24/02/24
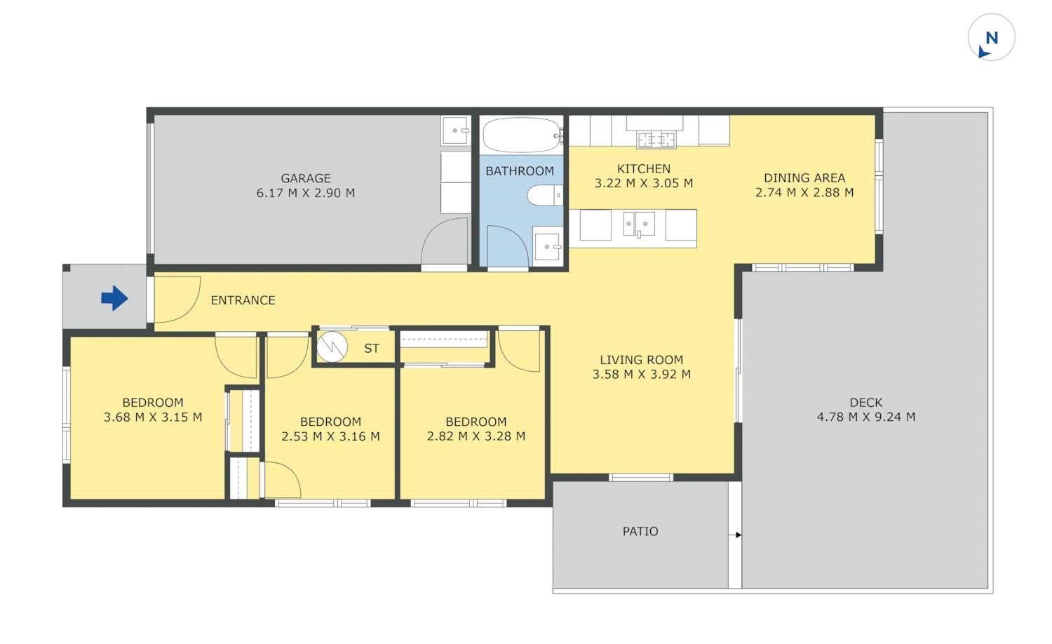
3 Bedroom - 1 Bath - Garage

Beautifully maintained and presented throughout, this near new property is situated within an emerging and very sought-after area in Takanini. This fantastically designed home offers a functional layout and enjoys low maintenance for easy everyday living.#

- Comprising three generously proportioned bedrooms and a well-appointed family bathroom, including a shower-over-bath setup.

-At the heart of the home, the open plan modern kitchen, dining and living area is spacious and basks in an abundance of natural light.

- Extending out to a fully fenced and north-west facing courtyard making it an ideal spot to relax or entertain in the afternoon sun.

- The single internal access garage, coupled with an additional off-street parking spot, adds to the convenience of this exceptional property.

- Surrounded by other quality homes in a friendly neighbourhood, you have the convenience of local nearby amenities at both Papakura Township and Takanini Town Centre, transport options and parks, including Bruce Pulman Park basically at your doorstep.

- In zone for the popular Kauri Flats School, Cosgrove School, Papakura Intermediate and Papakura High School.

- Healthy Home Complaint, In-Garage laundry, 1 Off-Street car parking and much more ….

Please do not visit the property under any circumstances. Please view from roadside only.

Please ENQUIRE for more information or RSVP to REGISTER for the next viewing.

Kind Regards
Team Realzea

Open homes
Contact the landlord to arrange a private viewing.
First listed 1 February, 2024
Views 4,045

Enquire

myRent connects tenants directly with landlords so you get direct answers.

Apply

Ready to rent this property? It's easy to make your application online.

Apply
Report this listing

If you believe that this listing is fraudulent or violates our Terms of Use, please let us know why below. We will investigate the listing and take appropriate action.

We'll keep you updated with our findings. We will only contact you to discuss this report.

Don't miss out on new Takanini rentals

myRent can email you listings as soon as they come up so you can be first in, best dressed.

$