This property has been rented.
4,933 views, 17 enquiries, and rented in 52 days.
Have a similar property? myRent is best way to find tenants.

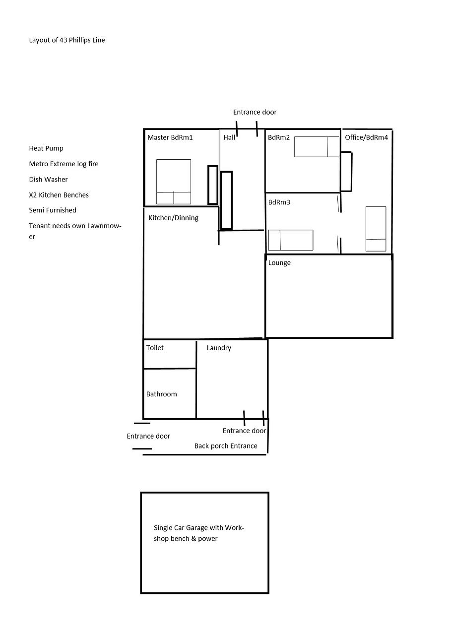
Country house Semi furnished 7km from Town

43 Phillips Line, Morrisons Bush, Greytown

$550

per week

3 beds
1 bath
1 covered
1 uncovered
Pets allowed with consent
Available now
Bond $2,200
Air conditioning
Healthy Homes compliant
Furnished

3 Bedroom plus office. Large Metro extreme firebox & heat pump.
Provided appliances are F&P washing machine/dryer combo and new fridge and dishwasher (not to be moved for your appliances)
Lounge furniture -Couch,x2 Lazyboy recliner chairs.
Queen-Bed and Set of drawers with mirror part of chattels.
Kitchen with waterfall island bench/breakfast bar. Second bench top with second sink. New in 2019.
Bathroom with heated towel rail and shower dome. (no Bath) Separate toilet.
Garden and section is small so easy to maintain by the tenant.
Garage has workbench with power.
No property water meter charges.
STRICTLY NO PETS
Rubbish removal included in the rental price.

This is not a long term forever property and is more suited to a short term property (6months to 2.5years) This property has been used for farm staff and could be required back for the use of farm staff in the future (current employee very settled living 5mins away) so therfor required LL notice of 63days apply to this property.

Open homes
Contact the landlord to arrange a private viewing.
First listed 4 December, 2023
Views 4,933

Enquire

myRent connects tenants directly with landlords so you get direct answers.

Apply

Ready to rent this property? It's easy to make your application online.

Apply
Report this listing

If you believe that this listing is fraudulent or violates our Terms of Use, please let us know why below. We will investigate the listing and take appropriate action.

We'll keep you updated with our findings. We will only contact you to discuss this report.

Don't miss out on new Greytown rentals

myRent can email you listings as soon as they come up so you can be first in, best dressed.

$