This property has been rented.
2,192 views, 23 enquiries, and rented in 6 days.
Have a similar property? myRent is best way to find tenants.

Brand new premium townhouse with outdoor living.

666B Great South Road, Ellerslie, Auckland

$750

per week

2 beds
3 baths
1 uncovered
Pets allowed with consent
Available now
Bond $3,000
Concrete walls - no noise
Heating
Garden
Fully-fenced
Courtyard
Built-in wardrobe
Air conditioning
New build
Healthy Homes compliant

This brand-new luxury townhouse is available for you to move into NOW.

The property is located in a quiet corner of the newly completed Park Avenue premium living complex. Designed by the acclaimed Leuschke Group Architects, it is a must see for anyone looking for a high quality, quiet, & warm long term rental in a very convenient and secure central location.

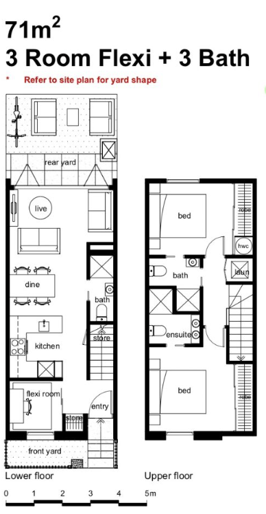
Key features include: 2 large bedrooms upstairs each with ensuite...then downstairs; a study or small childs room with yet another bathroom making 3 bathrooms in total. It comes with 1 uncovered carpark, 2 heat pump/AC up and down. The study could provide the perfect work from home space. Concrete walls so no neighbour noise. This double story townhouse has all the mod cons and has a big (26sqm) low maintenance artificial turf yard that is west facing for afternoon sun.

Park Avenue is nestled amongst Central Park business complex which also includes the award winning The Green hospitality area with its cafes, restaurants, bar (and big screen) meaning you can grab a coffee, bite or drinks with friends just 1 min walk away. Central Park also offers amenities like on-site electric car-share, communal gardens, dog washing facilities, a 24 hour gym (with yoga), and a childcare centre.

This unique complex is also located 5 min walk from Ellerslie train station and the vibrant Ellerslie Village with its plethora of shops, bars & restaurants. It also has super easy motorway access, and Auckland city is just a 10 min drive (or train ride) away.
Available for rental unfurnished from 2nd April, 2024 (photos are of similar staged townhouse in complex).

Come see this fantastic opportunity today before someone else makes it their new home!

Open homes
Contact the landlord to arrange a private viewing.
First listed 2 April, 2024
Views 2,192

Enquire

myRent connects tenants directly with landlords so you get direct answers.

Apply

Ready to rent this property? It's easy to make your application online.

Apply
Report this listing

If you believe that this listing is fraudulent or violates our Terms of Use, please let us know why below. We will investigate the listing and take appropriate action.

We'll keep you updated with our findings. We will only contact you to discuss this report.

Don't miss out on new Auckland rentals

myRent can email you listings as soon as they come up so you can be first in, best dressed.

$